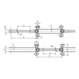
Çift mafsallı konveyör zinciri, hafif kapalı paletli süspansiyon konveyörünün ana çekiş bileşenidir.